Bromont QC, J2L 2H8
- Intergénération
- 0+1 chambres
- 1+0 salles de bain
Remarques :
Propriété coup de coeur! Vaste maison intergénération chaleureuse de près de 2700 pc hors sol, en plus du rez-de-jardin. Avec ses 6 chambres dont 5 hors-sol, chambre des maîtres avec walk-in attenant, 2 salles de bains complètes et 1 salle d'eau, 1 garage double et 1 deuxième garage en rez-de-jardin parfait pour les jouets à moteurs ou les accessoires plein-air. Terrasse couverte sur deux niveau avec de plus de 280 pc par étage. Terrain intime sans voisin arrière de 12,700 pc idéalement situé dans un secteur paisible au pied de la montagne. Piscine hors terre, coin feu et un cabanon sur dalle isolé parfait pour plus de rangement.
Coup de coeur! Cette propriété imposante et chaleureuse allie confort, espace et intimité. Elle offre une configuration idéale répondant aux besoins de toute la famille tout en offrant la possibilité d'exploiter la partie bi-générationnelle en rez-de-jardin.
Stratégiquement située au pied de la montagne, sur un vaste terrain de 12 700 pi² bordé d'arbres matures et sans voisin arrière, elle garantit tranquillité, intimité et qualité de vie. Le secteur est réputé pour son calme et son caractère familial.
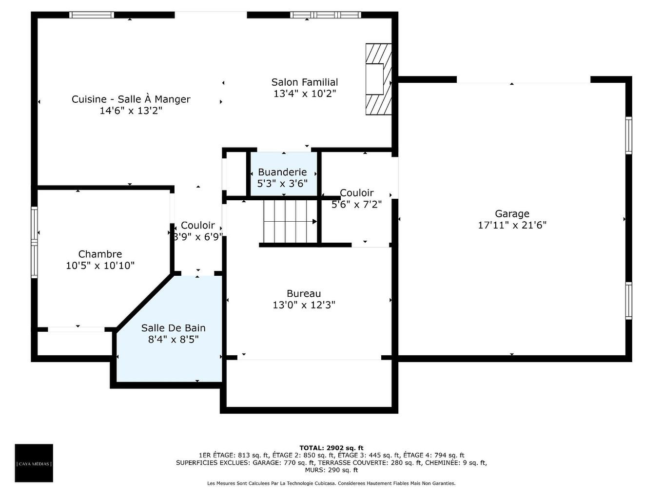
À l'intérieur, le rez-de-chaussée propose un espace de vie lumineux où la fenestration abondante laisse entrer la lumière naturelle à toute heure du jour. Vous y trouverez un grand bureau fermé, une cuisine avec armoires en merisier et comptoir en granite. Le rez-de-chaussée se distingue également par son garage double, ainsi qu'une terrasse couverte de plus de 280 pi² qui prolonge vos moments de détente, peu importe la météo.
À l'étage, vous découvrirez 3 chambres spacieuses, dont la chambre des maîtres avec walk-in attenant. Cet étage comprend également une immense salle familiale de 441 pi² au-dessus du garage, offrant une flexibilité exceptionnelle : salle de jeux, chambre supplémentaire, bureau secondaire ou salle multimédia, selon vos besoins. Il a été pensé pour conjuguer fonctionnalité et confort, répondant parfaitement aux réalités des familles modernes.
Le rez-de-jardin constitue l'un des plus grands atouts de cette propriété. Grâce à sa conception intergénérationnelle et à sa cuisine entièrement rénovée, il bénéficie d'une luminosité remarquable et d'un accès de plain-pied à l'arrière de la maison, rendant cet espace facilement accessible aux personnes à mobilité réduite. Ce logement distinct et indépendant assure intimité et autonomie, tout en permettant de garder une proximité rassurante. Il représente une solution idéale pour accueillir un parent, un enfant adulte ou pour générer un revenu locatif stable.
Toujours au rez-de-jardin, vous profiterez également d'un deuxième garage double, équipé d'une porte légèrement plus petite, parfait pour y stationner des jouets à moteur, les plus petits véhicules, ou encore pour créer un vaste espace de rangement supplémentaire. Cet ajout ingénieux maximise la fonctionnalité de la maison et plaira particulièrement aux passionnés de plein air ou aux bricoleurs.
À l'extérieur, le terrain est un véritable havre de paix. Bordé d'arbres et sans voisin arrière, il garantit une intimité exceptionnelle. Les deux niveaux de terrasses couvertes offrent des espaces parfaits pour recevoir famille et amis, profiter des repas d'été ou simplement se relaxer dans un cadre naturel apaisant.
Cette maison se distingue également par ses nombreux espaces de rangement, tant à l'intérieur qu'à l'extérieur. Sa superficie habitable impressionnante, conjuguée à une conception pratique, fait de cette propriété un bien rare sur le marché.
Contactez-nous dès aujourd'hui pour planifier une visite.
Inclusions: Habillage des fenêtres incluant la toile motorisée du bureau. Réfrigérateur, plaque de cuisson, four encastré (la fonction micro-onde ne fonctionne pas, l'acheteur s'engage à le prendre tel quel). Aspirateur central et accessoires, la piscine, le chauffe-eau et les accessoires de la piscine, cabanon.
Exclusions : Cellier, lave-vaisselle
Particularités du bâtiment :
- Style: Maison détachée
- Allée: Double largeur ou plus, Non pavée, Avec prise extérieure
- Dimensions : 9.82 x 9.26 METRE
- Efficacité énergétique: Certification Novoclimat
- Équipement disponible: Installation aspirateur central, Balcon privé, Cour privée, Échangeur d'air, Ouvre-porte électrique (garage), Rangement extérieur, Thermopompe murale
- Fondation: Béton coulé
- Foyer: Oui
- Foyer-Poêle: Foyer au gaz
- Garage: Attaché, Chauffé, Double largeur ou plus
- Installation laveuse-sécheuse: Salle de bains
- Particularités du bâtiment: Intergénération - Autre
- Particularités du site: Aucun voisin à l'arrière
- Piscine: Oui
- Proximité: Garderie/CPE, Golf, Parc, Piste cyclable, École primaire, Ski alpin, Ski de fond
- Revêtement de la toiture: Tôle
- Salle de bains: Douche indépendante
- Sous-sol: 6 pieds et plus, Entrée extérieure, Totalement aménagé
- Stationnement: Oui
- Terrain: Boisé, Paysager
- Topographie: Escarpé
- Mode de chauffage: Plinthes électriques
- Énergie pour le chauffage: Électricité, Propane
- Approvisionnement en eau: Municipalité
- Système d'égouts: Municipalité
Taxes:
- Taxes municipales: 7 529 $
- Taxe scolaire: 781 $
- Taxes annuelles totales: 8 310 $
Dépenses:
- Électrique: 4 210 $
Property Assessemnt:
- Évaluation du terrain: 269 000 $
- Évaluation de l'immeuble: 860 900 $
- Évaluation totale: 1 129 900 $
Caractéristiques :
- Bâti en: 2011
- Chambres : 5+1
- Dimensions du terrain : 12700.00 Pieds carrés
- Irregular: Oui
- Salle(s) de bains : 2
- Salle(s) d'eau : 1
- Zonage: RESI
- Nbre d'espaces de stationnement: 11
Détails des pièces :
- Hall d'entrée Rez-de-chaussée 2.54 m x 1.63 m 8.4 p x 5.4 p Plancher : Céramique
- Chambre - Irrégulier Rez-de-chaussée 3.84 m x 3.96 m 12.7 p x 13 p Plancher : Bois Note: Bureau
- Salon Rez-de-chaussée 5.84 m x 3.91 m 19.2 p x 12.10 p Plancher : Bois Note: Propane
- Salle à dîner Rez-de-chaussée 3.10 m x 4.50 m 10.2 p x 14.9 p Plancher : Bois Note: Porte Patio double
- Salle d'eau Rez-de-chaussée 2.21 m x 0.99 m 7.3 p x 3.3 p Plancher : Céramique
- Cuisine Rez-de-chaussée 4.42 m x 3.10 m 14.6 p x 10.2 p Plancher : Céramique Note: Merisier et granite
- Salle familiale 2e niveau 5.46 m x 6.55 m 17.11 p x 21.6 p Plancher : Bois Note: Possibilité d'être une chambre
- Chambre principale 2e niveau 3.96 m x 3.78 m 13 p x 12.5 p Plancher : Bois
- Penderie (Walk-in) 2e niveau 2.54 m x 2.34 m 8.4 p x 7.8 p Plancher : Bois
- Chambre 2e niveau 4.04 m x 3.05 m 13.3 p x 10 p Plancher : Bois
- Chambre - Irrégulier 2e niveau 4.34 m x 3.71 m 14.3 p x 12.2 p Plancher : Bois
- Salle de bains - Irrégulier 2e niveau 4.60 m x 4.39 m 15.1 p x 14.5 p Plancher : Céramique
- Bureau - Irrégulier Sous-sol 3.96 m x 3.73 m 13 p x 12.3 p Plancher : Plancher flottant
Intergénération - détails des pièces :
- Cuisine - Irrégulier 4.42 m x 4.01 m 14.6 p x 13.2 p Plancher : Autre - Bois d'ingénierie clic flottant Note: Thermoplastique
- Salon 4.06 m x 3.10 m 13.4 p x 10.2 p Plancher : Autre - Bois d'ingénierie clic flottant Note: Propane
- Chambre principale - Irrégulier Sous-sol 3.17 m x 3.30 m 10.5 p x 10.10 p Plancher : Autre - Bois d'ingénierie clic flottant
- Salle de bains - Irrégulier Sous-sol 2.54 m x 2.57 m 8.4 p x 8.5 p Plancher : Céramique
Convertir la mesure en :
Données fournies par : Centris - 600 Ch Du Golf, Ile -Des -Soeurs, Québec H3E 1A8
Nous croyons que tous les renseignements affichés sont exacts, mais nous ne le garantissons pas; les renseignements devraient être vérifiés de façon indépendante. Aucune garantie ou représentation de quelque nature que ce soit n’est offerte. Droits© 2021 Tous les droits sont réservés.
Tendances des prix du marché immobilier
Emplacement de 182 Rue de Saguenay, Bromont, QC, J2L 2H8
Données démographiques de 182 Rue de Saguenay, Bromont, QC, J2L 2H8
Étape de vie
Familles avec parents dans la cinquantaineType d'emploi
Industrie des services/Cols blancsRevenu moyen du ménage
374 355.54 $Nombre moyen d'enfants
1,86Population à domicile
Structure à domicile
Âge de la population
Éducation
Niveau d'éducation
No certificate/diploma/degree
9.13 %Diplôme d'études secondaires ou équivalent
16.04 %Certificat ou diplôme d'apprentissage ou d'une école de métiers
9.67 %Diplôme d'études collégiales ou d'études postsecondaires (non universitaires)
25.61 %Certificat d'études universitaires
3.81 %Diplômes d'études universitaires
35.75 %Navetteur
Se rendre au travail
En auto
94.25 %En transport en commun
4.64 %À pied
0.14 %À bicyclette
0.14 %Par tout autre moyen
0.83 %Diversité Culturelle
Connaissance des langues officielles
Langue maternelle
Données Sur Le Bâtiment
Type de bâtiment
Appartements (faible hauteur et à étages multiples)
32.58 %Maisons
67.42 %














































































































