Gatineau (Hull) QC, J9A 2S1
Remarques :
Secteur Hull. Condo de 3 chambres à coucher actuellement vacant situé au rez-de-jardin. Entrée séparée du salon avec place de rangement, salon avec foyer au bois et porte patio donnant sur une grande terrasse en plus d'être ouvert avec la salle à manger et la cuisine, chambre à coucher de bonne dimension, salle de lavage séparée de la salle de bains. Situé à proximité de nombreux services et à proximité d'Ottawa.
* Vous avez accès à une salle communautaire, piscine, court de tennis et terrain de basket.
Inclusions: Chauffe-eau.
Particularités du bâtiment :
- Style: Appartement
- Allée: Asphalte
- Commodités du bâtiment et espaces communs: Piscine extérieure
- Dimensions : 22.0 x 46.0 Pieds
- Fenestration: Bois, PVC
- Foyer: Oui
- Foyer-Poêle: Foyer au bois
- Piscine: Oui
- Proximité: Autoroute, Garderie/CPE, Parc, Piste cyclable, Transport en commun
- Revêtement de la toiture: Bardeaux d'asphalte
- Stationnement: Oui
- Terrain: Paysager
- Type de fenestration: Coulissante
- Mode de chauffage: Plinthes électriques
- Énergie pour le chauffage: Électricité
- Approvisionnement en eau: Municipalité
- Système d'égouts: Municipalité
Taxes:
- Taxes municipales: 2 071 $
- Taxe scolaire: 180 $
- Taxes annuelles totales: 2 251 $
Property Assessemnt:
- Évaluation du terrain: 55 500 $
- Évaluation de l'immeuble: 227 100 $
- Évaluation totale: 282 600 $
Caractéristiques :
- Bâti en: 1988
- Chambres : 3
- Dimensions du terrain : 1402.00 Pieds carrés
- Frais de copropriété : 354 $ Mensuel
- Irregular: Oui
- Salle(s) de bains : 1
- Superficie habitable (approx): 1037.0 Pieds carrés
- Zonage: RESI
- Nbre d'espaces de stationnement: 1
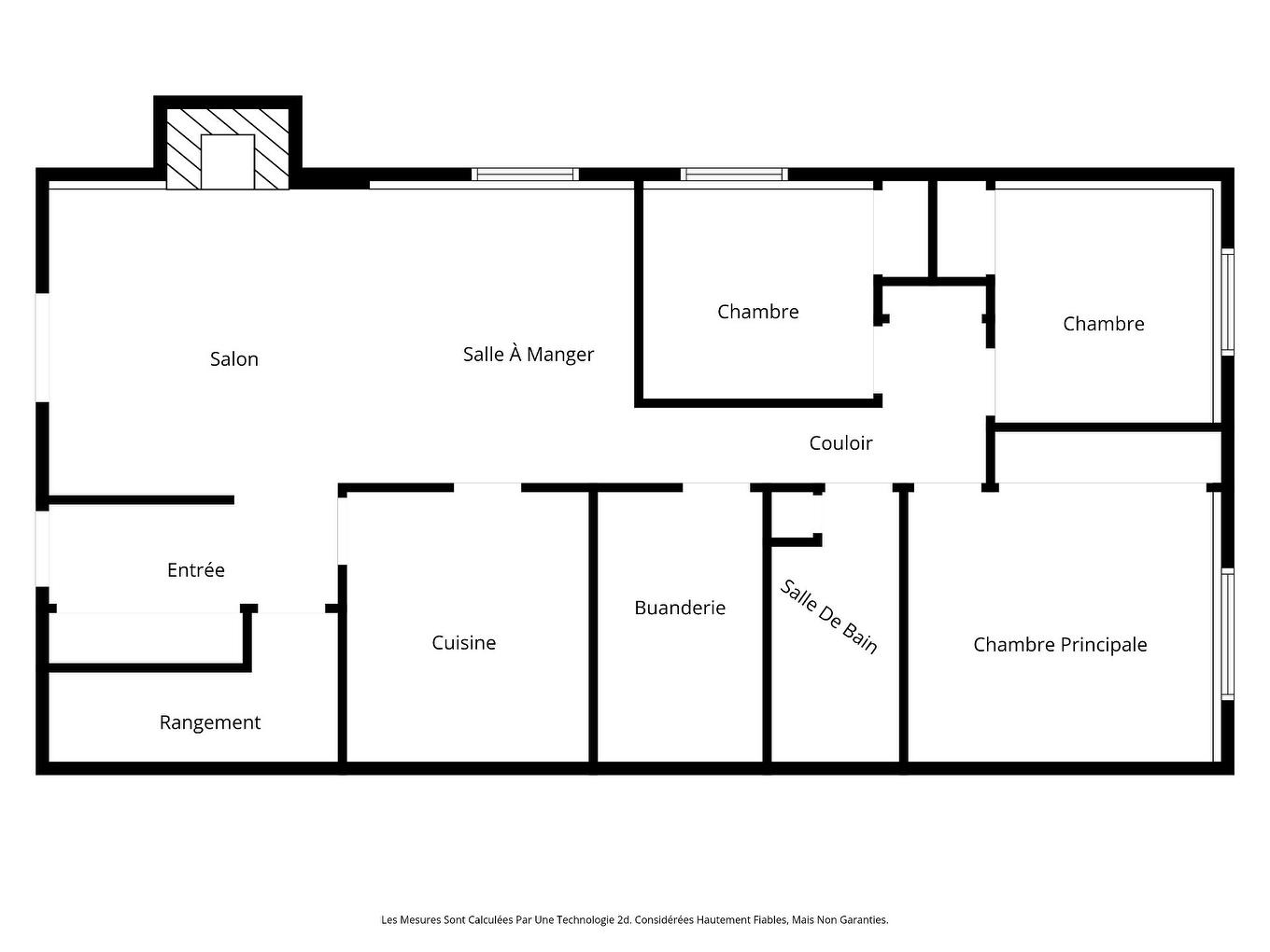
Détails des pièces :
- Hall d'entrée 3.45 m x 1.83 m 11.4 p x 6.0 p Plancher : Autre - Tuiles collées
- Cuisine 2.90 m x 3.23 m 9.6 p x 10.7 p Plancher : Autre - Tuiles collées
- Salon 3.91 m x 3.86 m 12.10 p x 12.8 p Plancher : Plancher flottant Note: Foyer, porte-patio
- Salle à dîner 3.68 m x 3.05 m 12.1 p x 10.0 p Plancher : Plancher flottant
- Salle de bains 3.20 m x 1.50 m 10.6 p x 4.11 p Plancher : Linoléum
- Chambre principale 3.66 m x 3.28 m 12.0 p x 10.9 p Plancher : Plancher flottant
- Chambre 2.72 m x 3.00 m 8.11 p x 9.10 p Plancher : Plancher flottant
- Chambre 2.77 m x 2.69 m 9.1 p x 8.10 p Plancher : Plancher flottant
- Salle de lavage 3.25 m x 1.91 m 10.8 p x 6.3 p Plancher : Autre - Tuiles collées
- Rangement 1.09 m x 3.40 m 3.7 p x 11.2 p Plancher : Autre - Tuiles collées
Convertir la mesure en :
Données fournies par : Centris - 600 Ch Du Golf, Ile -Des -Soeurs, Québec H3E 1A8
Nous croyons que tous les renseignements affichés sont exacts, mais nous ne le garantissons pas; les renseignements devraient être vérifiés de façon indépendante. Aucune garantie ou représentation de quelque nature que ce soit n’est offerte. Droits© 2021 Tous les droits sont réservés.
Tendances des prix du marché immobilier
Emplacement de 1-5 Imp. de la Roseraie, Gatineau (Hull), QC, J9A 2S1
Données démographiques de 1-5 Imp. de la Roseraie, Gatineau (Hull), QC, J9A 2S1
Étape de vie
Jeunes célibatairesType d'emploi
Industrie des servicesRevenu moyen du ménage
116 038.37 $Nombre moyen d'enfants
1,62Population à domicile
Structure à domicile
Âge de la population
Éducation
Niveau d'éducation
No certificate/diploma/degree
8.77 %Diplôme d'études secondaires ou équivalent
15.86 %Certificat ou diplôme d'apprentissage ou d'une école de métiers
5.61 %Diplôme d'études collégiales ou d'études postsecondaires (non universitaires)
17.86 %Certificat d'études universitaires
3.97 %Diplômes d'études universitaires
47.92 %Navetteur
Se rendre au travail
En auto
71.33 %En transport en commun
13.3 %À pied
3.25 %À bicyclette
3.6 %Par tout autre moyen
8.52 %Diversité Culturelle
Connaissance des langues officielles
Langue maternelle
Données Sur Le Bâtiment
Type de bâtiment
Appartements (faible hauteur et à étages multiples)
67.3 %Maisons
32.7 %


































