Visites libres
- dim 01 mars 2026 14h00 - 16h00
Longueuil (Saint-Hubert) QC, J3Z 1K1
Remarques :
***Superbe propriété clé en main sans voisins à l'arrière***, avec garage double largeur et 5 chambres à coucher, dont 3 à l'étage. Terrain particulièrement intime : à l'arrière, seulement la nature... chevreuils et écureuils! Grâce à la cour orientée sud, la maison profite d'un excellent ensoleillement toute la journée, et le spa vous permet de relaxer en toute tranquillité. Emplacement pratique près des services et du transport en commun, à quelques minutes du Quartier DIX30, du pont Champlain, des Promenades Saint-Bruno et de la route 116. Piste cyclable à l'avant reliée au réseau de la Rive-Sud.
Emplacement pratique près des grands axes et des services, avec un accès facile aux principaux corridors de déplacement de la Rive-Sud.
Garage : plafond haut avec espace de rangement (idéal pour équipements, pneus, stock saisonnier).
- Cour arrière sans vis-à-vis : une rareté à ce prix!
- Spa sous pavillon
À proximité de :
- 5 à 10 min de plusieurs épiceries (Maxi, IGA, Métro, etc.)
- 7 min des Promenades Saint-Bruno
- 8 min du superbe Parc de la Cité (parc-nature, sentiers, bassin, espaces verts)
- 12 min de la station de ski Saint-Bruno
- 15 min de la station REM Brossard
Localisation idéale pour accéder au Quartier DIX30, au parc national du Mont-Saint-Bruno (randonnée, lacs, nature) et bien plus encore!
Inclusions: Lave-vaisselle, micro-onde, rideaux et pôles rideaux, stores, hotte, thermopompe, balayeuse centrale et accessoires, spa, gazebo. Meuble (penderie) chambre dessus garage. Garage: Ouvre porte électrique +manette (x1), 2 tablettes suspendues, filage pour borne de recharge, espaces de rangement (plafond), porte-pneus (x2), armoires.
Exclusions : Cuisinière, laveuse, sécheuse, borne de recharge pour voiture électrique, tables de chevet suspendues, miroir (chambre au dessus garage), meuble télé suspendu dans le salon.
Particularités du bâtiment :
- Style: Maison détachée
- Allée: Pavé uni
- Dimensions : 14.04 x 10.78 METRE
- Fondation: Béton coulé
- Garage: Double largeur ou plus, Intégré
- Particularités du site: Aucun voisin à l'arrière
- Proximité: Autoroute, Cégep, Piste cyclable, École primaire, Réseau Express Métropolitain (REM), Ski alpin, Ski de fond, Train de banlieue, Transport en commun, Université
- Revêtement: Brique, Vinyle
- Sous-sol: 6 pieds et plus, Totalement aménagé
- Stationnement: Oui
- Terrain: Clôturé
- Topographie: Plat
- Vue: Panoramique
- Mode de chauffage: Air soufflé (pulsé)
- Énergie pour le chauffage: Électricité
- Approvisionnement en eau: Municipalité
- Système d'égouts: Municipalité
Taxes:
- Taxes municipales: 5 760 $
- Taxe scolaire: 547 $
- Taxes annuelles totales: 6 307 $
Property Assessemnt:
- Évaluation du terrain: 244 300 $
- Évaluation de l'immeuble: 601 800 $
- Évaluation totale: 846 100 $
Caractéristiques :
- Bâti en: 2009
- Chambres : 3+2
- Dimensions du terrain : 766.50 Mètres carrés
- Irregular: Oui
- Largeur du terrain en façade : 22.86 Mètre
- Profondeur du terrain : 33.53 Mètre
- Salle(s) de bains : 2
- Zonage: RESI
- Nbre d'espaces de stationnement: 6
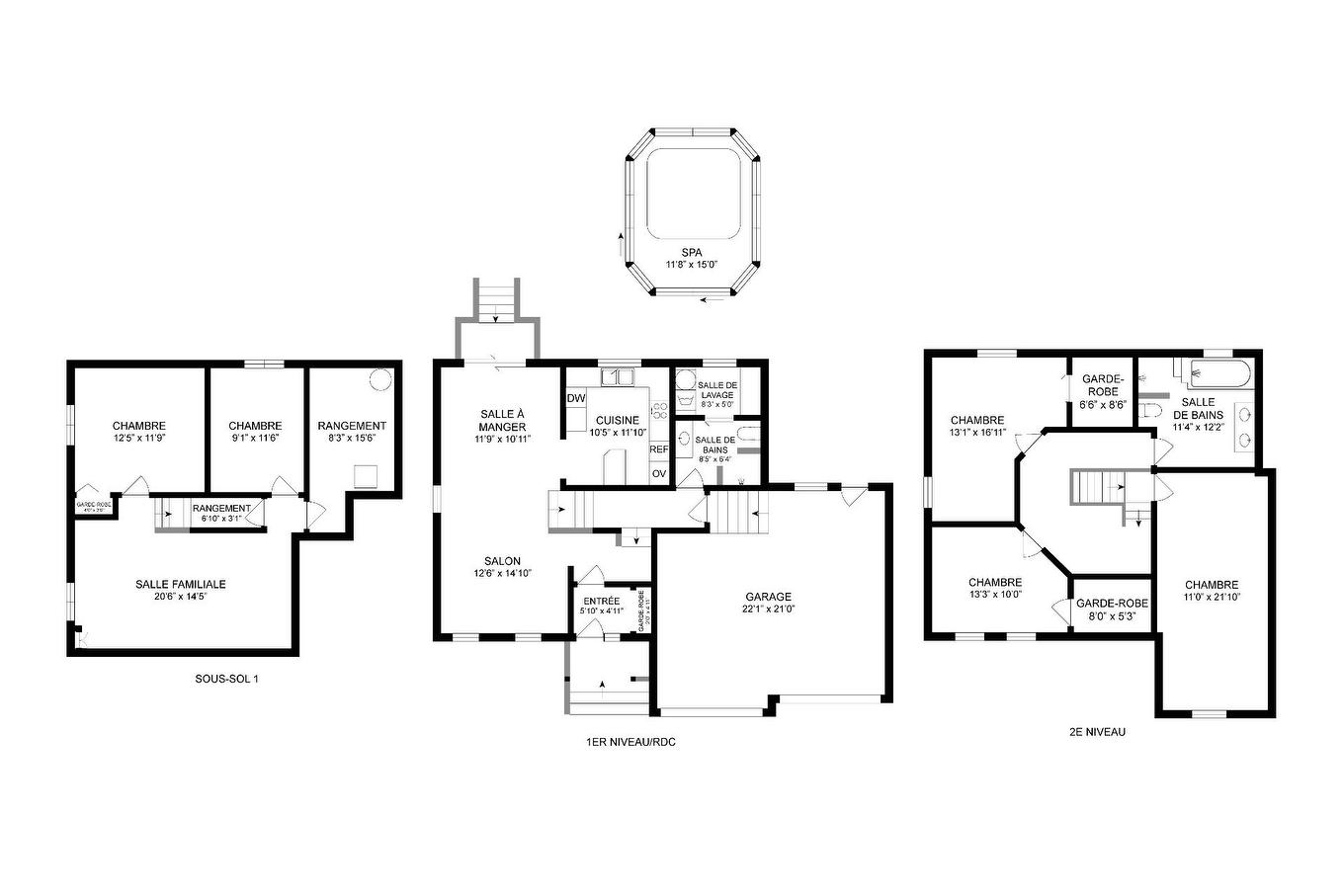
Détails des pièces :
- Hall d'entrée Rez-de-chaussée 1.78 m x 1.50 m 5.10 p x 4.11 p Plancher : Céramique
- Salon - Irrégulier Rez-de-chaussée 3.81 m x 4.52 m 12.6 p x 14.10 p Plancher : Céramique
- Salle à dîner - Irrégulier Rez-de-chaussée 3.58 m x 3.33 m 11.9 p x 10.11 p Plancher : Céramique
- Cuisine Rez-de-chaussée 3.17 m x 3.61 m 10.5 p x 11.10 p Plancher : Céramique
- Salle de bains Rez-de-chaussée 2.57 m x 1.93 m 8.5 p x 6.4 p Plancher : Céramique
- Salle de lavage Rez-de-chaussée 2.51 m x 1.52 m 8.3 p x 5.0 p Plancher : Céramique
- Chambre principale - Irrégulier 2e niveau 3.99 m x 5.16 m 13.1 p x 16.11 p Plancher : Bois
- Chambre 2e niveau 4.04 m x 3.05 m 13.3 p x 10.0 p Plancher : Bois
- Chambre 2e niveau 3.35 m x 6.65 m 11.0 p x 21.10 p Plancher : Plancher flottant
- Penderie (Walk-in) 2e niveau 2.44 m x 1.60 m 8.0 p x 5.3 p Plancher : Bois
- Penderie (Walk-in) 2e niveau 1.98 m x 2.59 m 6.6 p x 8.6 p Plancher : Bois
- Salle de bains 2e niveau 3.45 m x 3.71 m 11.4 p x 12.2 p Plancher : Céramique
- Chambre Sous-sol 3.78 m x 3.58 m 12.5 p x 11.9 p Plancher : Plancher flottant
- Salle familiale Sous-sol 6.25 m x 4.39 m 20.6 p x 14.5 p Plancher : Plancher flottant
- Chambre Sous-sol 2.77 m x 3.51 m 9.1 p x 11.6 p Plancher : Plancher flottant
Convertir la mesure en :
Données fournies par : Centris - 600 Ch Du Golf, Ile -Des -Soeurs, Québec H3E 1A8
Nous croyons que tous les renseignements affichés sont exacts, mais nous ne le garantissons pas; les renseignements devraient être vérifiés de façon indépendante. Aucune garantie ou représentation de quelque nature que ce soit n’est offerte. Droits© 2021 Tous les droits sont réservés.
Tendances des prix du marché immobilier
Emplacement de 2315 Boul. Mountainview, Longueuil (Saint-Hubert), QC, J3Z 1K1
Données démographiques de 2315 Boul. Mountainview, Longueuil (Saint-Hubert), QC, J3Z 1K1
Étape de vie
Familles avec parents dans la cinquantaineType d'emploi
MixteRevenu moyen du ménage
138 943.13 $Nombre moyen d'enfants
1,88Population à domicile
Structure à domicile
Âge de la population
Éducation
Niveau d'éducation
No certificate/diploma/degree
15.12 %Diplôme d'études secondaires ou équivalent
22.65 %Certificat ou diplôme d'apprentissage ou d'une école de métiers
15.77 %Diplôme d'études collégiales ou d'études postsecondaires (non universitaires)
24.47 %Certificat d'études universitaires
2.39 %Diplômes d'études universitaires
19.6 %Navetteur
Se rendre au travail
En auto
86.18 %En transport en commun
7.2 %À pied
4.44 %À bicyclette
0.38 %Par tout autre moyen
1.8 %Diversité Culturelle
Connaissance des langues officielles
Langue maternelle
Données Sur Le Bâtiment
Type de bâtiment
Appartements (faible hauteur et à étages multiples)
13.72 %Maisons
86.28 %




















































































