Visites libres
- dim 25 janv 2026 14h00 - 16h00
Montréal (Saint-Laurent) QC, H4L 0A6
Remarques :
Condo moderne de 2 chambres et 1 salle de bain avec un espace de vie à aire ouverte lumineux. La chambre principale comprend un walk-in, et le balcon privé prolonge l'espace de vie vers l'extérieur. L'immeuble offre d'excellentes commodités, dont une terrasse sur le toit avec piscine ainsi qu'un gym au rez-de-chaussée. Idéalement situé près de tous les services et à quelques minutes de l'Hôpital du Sacré-Coeur de Montréal, ce condo allie confort et commodité.
Bienvenue au 4700 Henri-Bourassa O., #408 -- un condo moderne de 2 chambres et 1 salle de bain offrant un espace de vie à aire ouverte lumineux. La chambre principale dispose d'un grand walk-in, tandis que le balcon privé prolonge votre espace de vie vers l'extérieur.
Le condo a été soigneusement entretenu et mis à jour, comprenant des comptoirs de salle de bain en quartz avec robinet et toilette neufs, ainsi que l'ajout de spots encastrés. La cuisine est entièrement équipée avec électroménagers, incluant un réfrigérateur avec arrivée d'eau et un éclairage supplémentaire pour une touche contemporaine. L'unité comprend également laveuse et sécheuse, dont une laveuse toute neuve de moins d'un an pour une tranquillité d'esprit accrue.
L'immeuble offre des commodités de premier ordre telles qu'une terrasse sur le toit avec piscine, parfaite pour profiter de l'été, ainsi qu'un gymnase situé au rez-de-chaussée.
Idéalement situé près de tous les services et à quelques minutes de l'Hôpital du Sacré-Coeur de Montréal, ce condo combine confort et commodité dans un emplacement de choix.
Inclusions: Réfrigérateur, cuisinière, lave-linge/sèche-linge, stores, lave-vaisselle, réfrigérateur à vin et luminaires
Particularités du bâtiment :
- Style: Appartement
- Air climatisé: Oui
- Commodités du bâtiment et espaces communs: Ascenseur, Chute à déchets, Salle d'entraînement, Espace de stationnement pour visiteur, Terrasse sur le toit
- Équipement disponible: Balcon privé, Climatiseur mural, Échangeur d'air, Rangement intérieur
- Garage: Chauffé, Intégré
- Proximité: Autoroute, Cégep, Garderie/CPE, Hôpital, Métro, Parc, Piste cyclable, École primaire, École secondaire, Train de banlieue, Transport en commun
- Restrictions/Permissions: Location court terme non permise
- Stationnement: Oui
- Type d'animaux: Chats permis, Chiens permis
- Mode de chauffage: Plinthes électriques
- Énergie pour le chauffage: Électricité
- Approvisionnement en eau: Municipalité
- Système d'égouts: Municipalité
Taxes:
- Taxes municipales: 2 222 $
- Taxe scolaire: 264 $
- Taxes annuelles totales: 2 486 $
Property Assessemnt:
- Évaluation du terrain: 55 200 $
- Évaluation de l'immeuble: 284 400 $
- Évaluation totale: 339 600 $
Caractéristiques :
- Bâti en: 2012
- Chambres : 2
- Frais de copropriété : 377 $ Mensuel
- Salle(s) de bains : 1
- Superficie habitable (approx): 672.0 Pieds carrés
- Zonage: RESI
- Nbre d'espaces de stationnement: 1
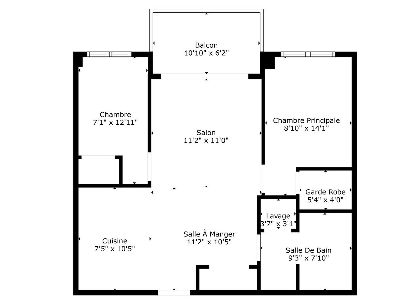
Détails des pièces :
- Salon 3.40 m x 3.35 m 11.2 p x 11.0 p Plancher : Bois
- Salle à dîner 3.40 m x 3.17 m 11.2 p x 10.5 p Plancher : Bois
- Cuisine 2.26 m x 3.17 m 7.5 p x 10.5 p Plancher : Bois
- Chambre principale 2.69 m x 4.29 m 8.10 p x 14.1 p Plancher : Bois
- Penderie (Walk-in) 1.63 m x 1.22 m 5.4 p x 4.0 p Plancher : Bois
- Chambre 2.16 m x 3.68 m 7.1 p x 12.1 p Plancher : Bois
- Salle de bains 2.82 m x 2.16 m 9.3 p x 7.1 p Plancher : Céramique
Convertir la mesure en :
Données fournies par : Centris - 600 Ch Du Golf, Ile -Des -Soeurs, Québec H3E 1A8
Nous croyons que tous les renseignements affichés sont exacts, mais nous ne le garantissons pas; les renseignements devraient être vérifiés de façon indépendante. Aucune garantie ou représentation de quelque nature que ce soit n’est offerte. Droits© 2021 Tous les droits sont réservés.
Tendances des prix du marché immobilier
Emplacement de 408-4700 Boul. Henri-Bourassa O., Montréal (Saint-Laurent), QC, H4L 0A6
Données démographiques de 408-4700 Boul. Henri-Bourassa O., Montréal (Saint-Laurent), QC, H4L 0A6
Étape de vie
Jeunes famillesType d'emploi
Industrie des services/Cols blancsRevenu moyen du ménage
92 900.43 $Nombre moyen d'enfants
1,92Population à domicile
Structure à domicile
Âge de la population
Éducation
Niveau d'éducation
No certificate/diploma/degree
20.27 %Diplôme d'études secondaires ou équivalent
22.38 %Certificat ou diplôme d'apprentissage ou d'une école de métiers
9.54 %Diplôme d'études collégiales ou d'études postsecondaires (non universitaires)
15.92 %Certificat d'études universitaires
3.17 %Diplômes d'études universitaires
28.72 %Navetteur
Se rendre au travail
En auto
64.13 %En transport en commun
27.84 %À pied
3.23 %À bicyclette
1.38 %Par tout autre moyen
3.42 %Diversité Culturelle
Connaissance des langues officielles
Langue maternelle
Données Sur Le Bâtiment
Type de bâtiment
Appartements (faible hauteur et à étages multiples)
76.31 %Maisons
23.69 %Achat ou location
408-4700 Boul. Henri-Bourassa O., Montréal (Saint-Laurent), QC, H4L 0A6












































