Visites libres
- dim 01 mars 2026 10h00 - 12h00
Québec (Les Rivières) QC, G2B 5M9
Remarques :
Superbe et vaste cottage entretenue par des propriétaires minutieux dans un secteur primé de Lebourgneuf. Doté de 5 chambres à coucher et d'un bureau, d'un généreux terrain entièrement paysager (parution revue je décors 2018)de 7700 pi2 SANS VOISIN DIRECT arrière et d'un pratique garage EXCAVÉ, cette chic propriété est prête à accueillir votre famille dès maintenant et pour longtemps! En plus d'un cossus secteur familiale, vous pourrez bénéficiez d'un chaleureux foyer au salon, de comptoir de quartz, d'un walk in pour la chambre des maîtres, système de chauffage central, d'un énorme cabanon et beaucoup plus encore! Rare dans le secteur.
Superbe et vaste cottage entretenue par des propriétaires minutieux dans un secteur primé de lebourgneuf. Doté de 5 chambres à coucher et d'un bureau, d'un généreux terrain entièrement paysager (parution revue je décors 2018) clôturé de 7700 pi2 SANS VOISIN DIRECT arrière et d'un pratique garage EXCAVÉ, cette chic propriété est prête à accueillir votre famille dès maintenant et pour longtemps! En plus d'un cossus secteur familiale, vous pourrez bénéficiez d'un chaleureux foyer au salon, de comptoir de quartz, d'un walk in pour la chambre des maîtres, système de chauffage central, d'un énorme cabanon 20x14 et beaucoup plus encore! Rare dans ce gabarit, elle est tout simplement parfaite!
Inclusions: Luminaires, habillage des fenêtres, spa, plaque chauffante cuisinière encastré, foyer extérieur encastré, spa et ses accessoires.
Exclusions : Rideaux
Particularités du bâtiment :
- Style: Maison détachée
- Armoires de cuisine: Bois
- Dimensions : 144.3 x 105.9 Pieds
- Fenestration: PVC
- Garage: Attaché, Chauffé, Simple largeur
- Proximité: Autoroute, Garderie/CPE, Parc, Piste cyclable, École primaire, École secondaire, Transport en commun
- Revêtement: Pierre
- Revêtement de la toiture: Bardeaux d'asphalte
- Sous-sol: 6 pieds et plus, Totalement aménagé
- Stationnement: Oui
- Approvisionnement en eau: Municipalité
- Système d'égouts: Municipalité
Taxes:
- Taxes municipales: 6 254 $
- Taxe scolaire: 526 $
- Taxes annuelles totales: 6 780 $
Dépenses:
- Électrique: 2 390 $
Property Assessemnt:
- Évaluation du terrain: 250 000 $
- Évaluation de l'immeuble: 510 000 $
- Évaluation totale: 760 000 $
Caractéristiques :
- Bâti en: 2007
- Chambres : 3+2
- Dimensions du terrain : 7736.03 Pieds carrés
- Salle(s) de bains : 2
- Salle(s) d'eau : 1
- Superficie habitable (approx): 2328.22 Pieds carrés
- Zonage: RESI
- Nbre d'espaces de stationnement: 1
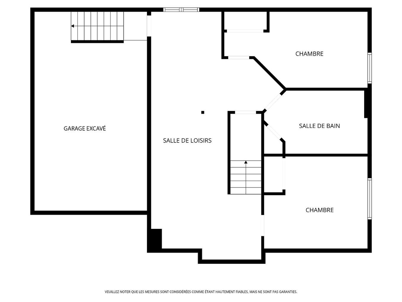
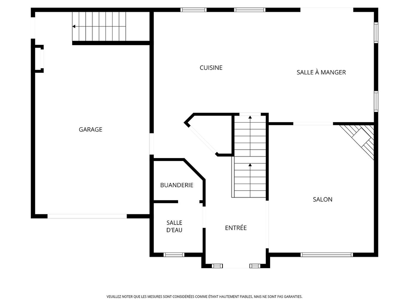
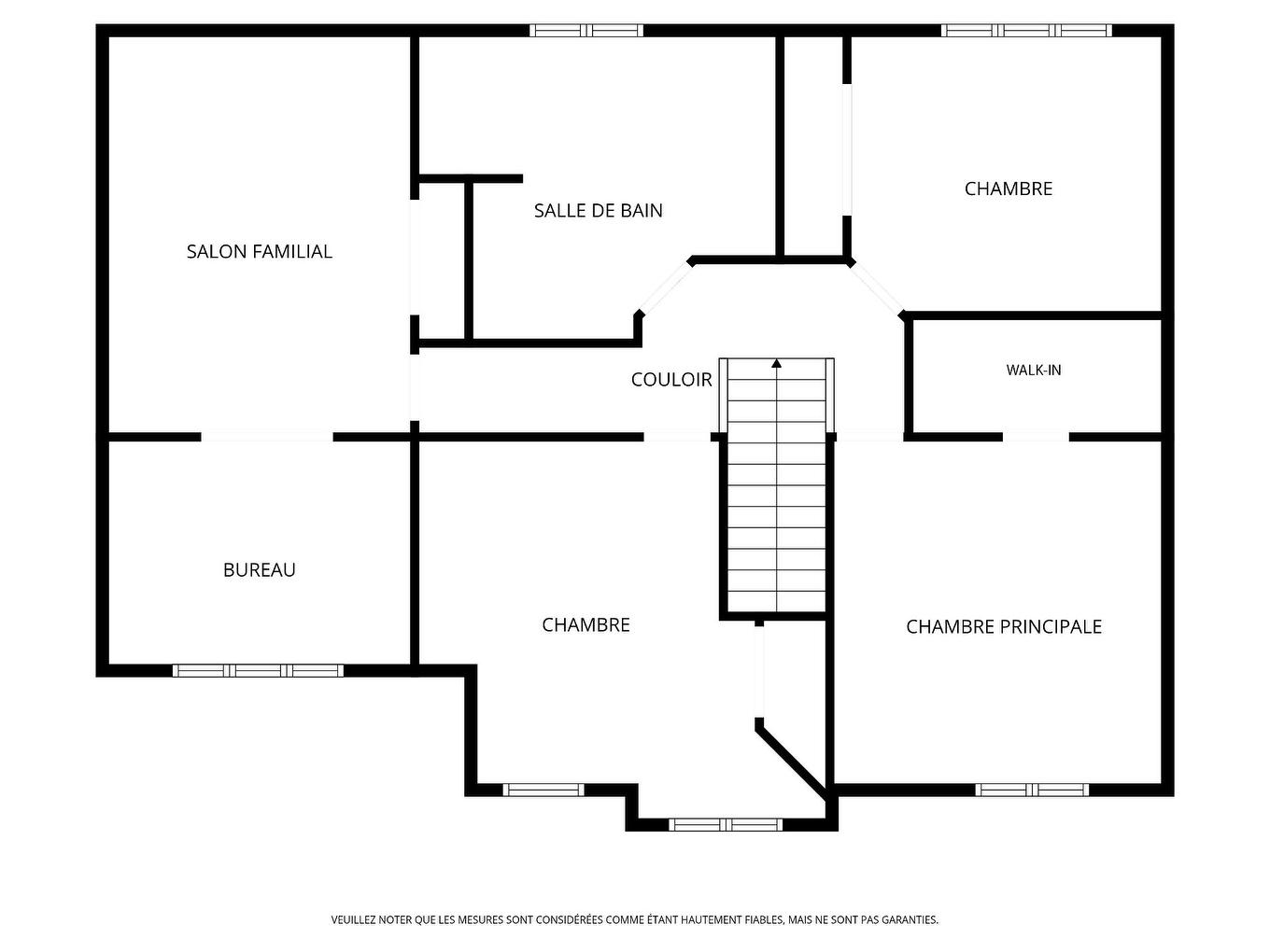
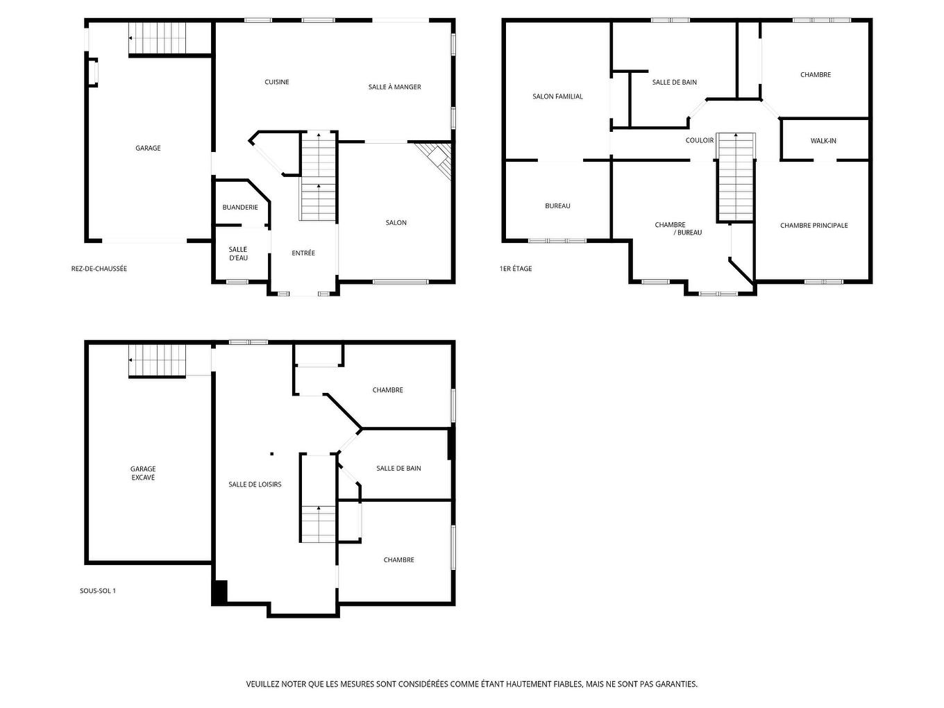
Détails des pièces :
- Hall d'entrée - Irrégulier Rez-de-chaussée 2.39 m x 4.22 m 7.10 p x 13.10 p Plancher : Céramique
- Salle de lavage Rez-de-chaussée 3.61 m x 1.83 m 11.10 p x 6.0 p Plancher : Céramique
- Salon Rez-de-chaussée 3.96 m x 4.88 m 13.0 p x 16.0 p Plancher : Bois
- Salle à dîner Rez-de-chaussée 4.24 m x 4.22 m 13.11 p x 13.10 p Plancher : Bois
- Cuisine Rez-de-chaussée 4.22 m x 4.37 m 13.10 p x 14.4 p Plancher : Céramique
- Autre Corridor Rez-de-chaussée 2.03 m x 2.62 m 6.8 p x 8.7 p Plancher : Céramique
- Autre Corridor - Irrégulier 2e niveau 3.20 m x 2.11 m 10.6 p x 6.11 p Plancher : Bois
- Salle de bains 2e niveau 3.91 m x 3.68 m 12.10 p x 12.1 p Plancher : Céramique
- Chambre principale 2e niveau 4.17 m x 4.17 m 13.8 p x 13.8 p Plancher : Bois
- Penderie (Walk-in) - Irrégulier 2e niveau 1.68 m x 3.05 m 5.6 p x 10.0 p Plancher : Bois
- Chambre 2e niveau 3.99 m x 3.38 m 13.1 p x 11.1 p Plancher : Bois
- Chambre - Irrégulier 2e niveau 4.42 m x 4.50 m 14.6 p x 14.9 p Plancher : Bois
- Autre Corridor 2e niveau 3.73 m x 1.02 m 12.3 p x 3.4 p Plancher : Bois
- Salon 2e niveau 3.73 m x 5.03 m 12.3 p x 16.6 p Plancher : Bois
- Bureau 2e niveau 2.69 m x 3.73 m 8.10 p x 12.3 p Plancher : Bois
- Chambre Sous-sol 4.01 m x 3.71 m 13.2 p x 12.2 p Plancher : Plancher flottant
- Salon - Irrégulier Sous-sol 4.11 m x 9.42 m 13.6 p x 30.11 p Plancher : Céramique
- Chambre Sous-sol 5.36 m x 2.69 m 17.7 p x 8.10 p Plancher : Céramique
- Salle de bains Sous-sol 4.01 m x 2.46 m 13.2 p x 8.1 p Plancher : Céramique
- Rangement Sous-sol 6.63 m x 4.29 m 21.9 p x 14.1 p Plancher : Béton
Convertir la mesure en :
Données fournies par : Centris - 600 Ch Du Golf, Ile -Des -Soeurs, Québec H3E 1A8
Nous croyons que tous les renseignements affichés sont exacts, mais nous ne le garantissons pas; les renseignements devraient être vérifiés de façon indépendante. Aucune garantie ou représentation de quelque nature que ce soit n’est offerte. Droits© 2021 Tous les droits sont réservés.
Tendances des prix du marché immobilier
Emplacement de 9230 Av. du Patrimoine-Mondial, Québec (Les Rivières), QC, G2B 5M9
Données démographiques de 9230 Av. du Patrimoine-Mondial, Québec (Les Rivières), QC, G2B 5M9
Étape de vie
Familles grandissantesType d'emploi
MixteRevenu moyen du ménage
129 054.33 $Nombre moyen d'enfants
1,79Population à domicile
Structure à domicile
Âge de la population
Éducation
Niveau d'éducation
No certificate/diploma/degree
10.86 %Diplôme d'études secondaires ou équivalent
23.98 %Certificat ou diplôme d'apprentissage ou d'une école de métiers
14.11 %Diplôme d'études collégiales ou d'études postsecondaires (non universitaires)
21.58 %Certificat d'études universitaires
2.06 %Diplômes d'études universitaires
27.4 %Navetteur
Se rendre au travail
En auto
90.37 %En transport en commun
6.74 %À pied
1.34 %À bicyclette
0.91 %Par tout autre moyen
0.64 %Diversité Culturelle
Connaissance des langues officielles
Langue maternelle
Données Sur Le Bâtiment
Type de bâtiment
Appartements (faible hauteur et à étages multiples)
43.47 %Maisons
56.53 %














































































































































