Québec (Sainte-Foy/Sillery/Cap-Rouge) QC, G1T 1R6
Remarques :
Entretenue avec le plus grand soin, cette maison Viceroy séduit grâce à ses poutres, son toit cathédrale et ses puits de lumière. La propriété repose sur un terrain de près de 11 000 pi² en plein coeur de Sillery, à proximité du Collège Mariste, de l'Externat St-Jean-Berchmans, de la rue Maguire, de la plage Jacques-Cartier et des accès aux autoroutes et ponts. Le rez-de-chaussée comprend deux chambres spacieuses, et le sous-sol offre 2 chambres supplémentaires en y agrandissant les fenêtres, avec possibilité d'une 5e. L'entrée en fer à cheval facilite les allées et le pignon sur rue assure une belle visibilité. Une propriété d'exception!
2003 : Remplacement du tapis par du bois franc au rez-de-chaussée (salon, salle à manger, corridor, deux chambres à coucher).
2008 : Remplacement des thermos de toutes les fenêtres du rez-de-chaussée, incluant les lanterneaux des deux chambres à coucher.
2010 : Agrandissement et rénovation complète de la salle de bains du rez-de-chaussée.
2012 : Remplacement du comptoir de cuisine par un comptoir en granite et changement du dosseret.
Inclusions: Piscine 15' et ses accessoires, stores, luminaires, remise (avec toilette et évier), aspirateur central et ses accessoires.
Exclusions : Lave-vaisselle.
Particularités du bâtiment :
- Style: Maison détachée
- Appareils en location (mensuel): Système d'alarme
- Équipement disponible: Installation aspirateur central, Système d'alarme
- Fenestration: Bois
- Fondation: Béton coulé
- Foyer: Oui
- Foyer-Poêle: Foyer au bois
- Garage: Attaché, Chauffé
- Piscine: Oui
- Proximité: Autoroute, Cégep, Garderie/CPE, Hôpital, Parc, Piste cyclable, École primaire, École secondaire, Transport en commun, Université
- Revêtement: Clin de cèdre
- Revêtement de la toiture: Bardeaux d'asphalte
- Sous-sol: 6 pieds et plus, Totalement aménagé
- Stationnement: Oui
- Type de fenestration: Manivelle (battant), Porte-fenêtre
- Mode de chauffage: Plinthes électriques
- Énergie pour le chauffage: Électricité
- Approvisionnement en eau: Municipalité
- Système d'égouts: Municipalité
Taxes:
- Taxes municipales: 6 888 $
- Taxe scolaire: 590 $
- Taxes annuelles totales: 7 478 $
Dépenses:
- Électrique: 3 300 $
Property Assessemnt:
- Évaluation du terrain: 555 000 $
- Évaluation de l'immeuble: 290 000 $
- Évaluation totale: 845 000 $
Caractéristiques :
- Bâti en: 1985
- Chambres : 2+2
- Dimensions du terrain : 1021.90 Mètres carrés
- Salle(s) de bains : 2
- Superficie habitable (approx): 139.6 Mètres carrés
- Zonage: RESI
- Nbre d'espaces de stationnement: 5
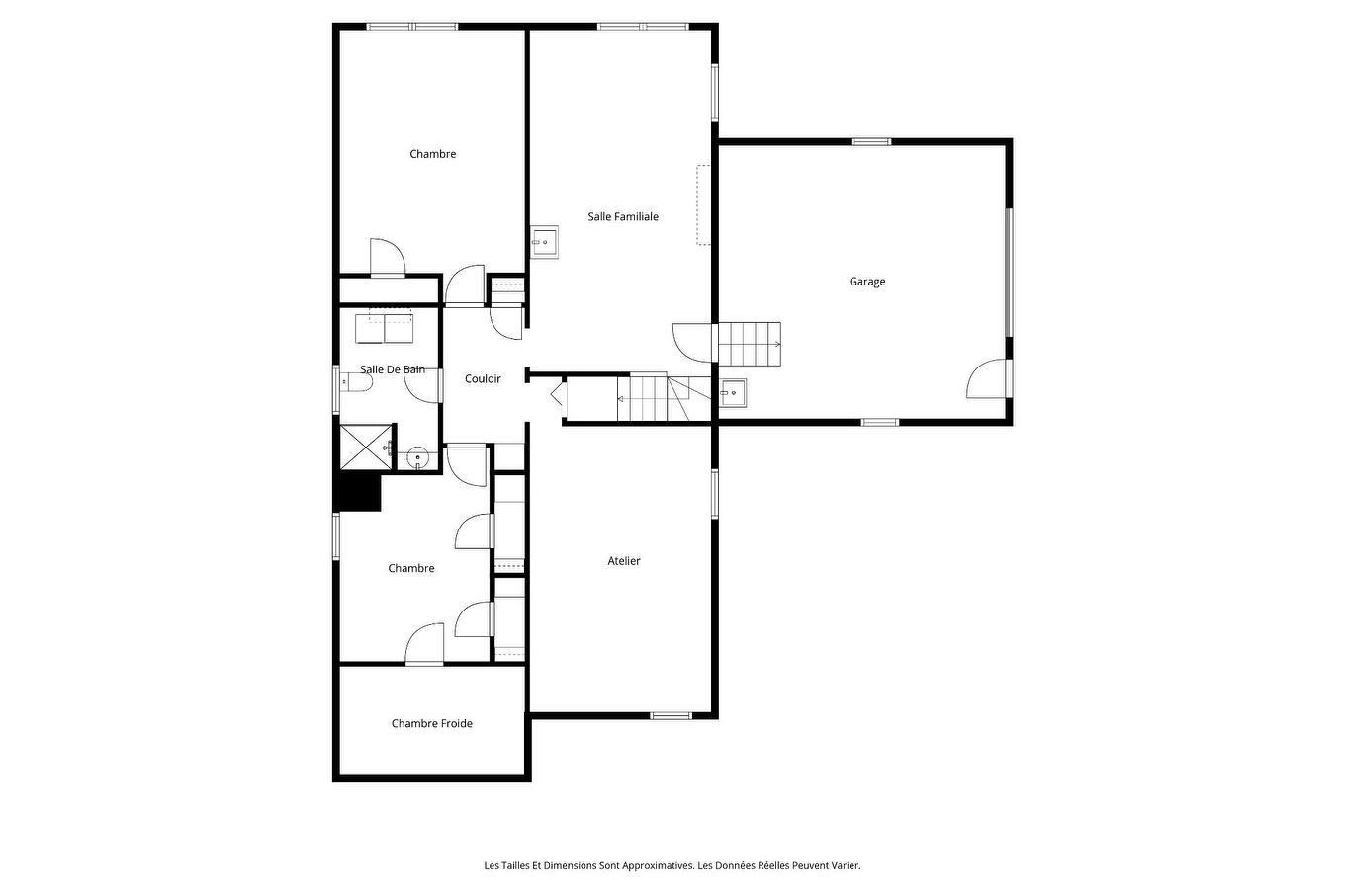
Détails des pièces :
- Salon Rez-de-chaussée 6.23 m x 4.3 m 20.44 p x 14.11 p Plancher : Bois
- Salle à dîner Rez-de-chaussée 4.2 m x 3.6 m 13.78 p x 11.81 p Plancher : Céramique
- Cuisine Rez-de-chaussée 2.9 m x 3 m 9.51 p x 9.84 p Plancher : Céramique
- Salle de bains Rez-de-chaussée 2.9 m x 3.6 m 9.51 p x 11.81 p Plancher : Céramique
- Chambre principale Rez-de-chaussée 4 m x 6 m 13.12 p x 19.69 p Plancher : Bois
- Chambre - Irrégulier Rez-de-chaussée 4.8 m x 3.9 m 15.75 p x 12.80 p Plancher : Bois
- Chambre Sous-sol 4.9 m x 3.9 m 16.08 p x 12.80 p Plancher : Tapis
- Chambre Sous-sol 3 m x 3.9 m 9.84 p x 12.80 p Plancher : Tapis
- Salle de bains Sous-sol 1.9 m x 3.3 m 6.23 p x 10.83 p Plancher : Céramique
- Salle familiale Sous-sol 6.0 m x 3.8 m 19.69 p x 12.47 p Plancher : Couvre-sols souples
- Atelier Sous-sol 3.9 m x 6.2 m 12.80 p x 20.34 p Plancher : Couvre-sols souples
- Cave/Chambre froide Sous-sol 2.2 m x 3.9 m 7.22 p x 12.80 p Plancher : Béton
Convertir la mesure en :
Données fournies par : Centris - 600 Ch Du Golf, Ile -Des -Soeurs, Québec H3E 1A8
Nous croyons que tous les renseignements affichés sont exacts, mais nous ne le garantissons pas; les renseignements devraient être vérifiés de façon indépendante. Aucune garantie ou représentation de quelque nature que ce soit n’est offerte. Droits© 2021 Tous les droits sont réservés.
Tendances des prix du marché immobilier
Emplacement de 2398 Ch. St-Louis, Québec (Sainte-Foy/Sillery/Cap-Rouge), QC, G1T 1R6
Données démographiques de 2398 Ch. St-Louis, Québec (Sainte-Foy/Sillery/Cap-Rouge), QC, G1T 1R6
Étape de vie
Familles avec parents dans la cinquantaineType d'emploi
Industrie des services/Cols blancsRevenu moyen du ménage
269 824.84 $Nombre moyen d'enfants
1,93Population à domicile
Structure à domicile
Âge de la population
Éducation
Niveau d'éducation
No certificate/diploma/degree
8.65 %Diplôme d'études secondaires ou équivalent
10.7 %Certificat ou diplôme d'apprentissage ou d'une école de métiers
2.2 %Diplôme d'études collégiales ou d'études postsecondaires (non universitaires)
17.71 %Certificat d'études universitaires
6.65 %Diplômes d'études universitaires
54.1 %Navetteur
Se rendre au travail
En auto
81.44 %En transport en commun
2.74 %À pied
12.36 %À bicyclette
3.32 %Par tout autre moyen
0.14 %Diversité Culturelle
Connaissance des langues officielles
Langue maternelle
Données Sur Le Bâtiment
Type de bâtiment
Appartements (faible hauteur et à étages multiples)
15.03 %Maisons
84.97 %


















































































































