Sainte-Julienne QC, J0K 2T0
Remarques :
À bâtir. Le prix peut varier selon les matériaux, la fondation choisie et les modifications demandées par l'acheteur. Le prix n'inclut pas le puit et la fosse septique. Enveloppe de la maison livrée et assemblée par nos experts. Cette étape comprend la charpente, les portes extérieures, les fenêtres, le revêtement de toiture, le pare-air et les divisions intérieures. Cette formule inclut la fondation, le revêtement extérieur, la plomberie, l'électricité, la pose du gypse, le tirage de joints,la peinture et le couvre-sol.Cette formule alloue $50,000. pour la finition de la salle de bain et de la cuisine $145,000 sont prévus pour le terrain #3.
Maison à bâtir. Le prix peut varier selon les matériaux et les modifications demandées par l'acheteur. Le prix n'inclut pas le puits et la fosse septique.
Addenda
Nouveau projet de maisons ou chalets style moderne signé Struktäll. Clé en main, plusieurs modèles disponibles.
Modèles de luxe
Livraison partout au Québec
Sur le terrain de votre choix ou sur nos choix de terrains disponible
Formule clé-en-main (fondation, structure et finition) Enveloppe de la maison livrée et assemblée par nos experts sur le terrain.
INCLUSIONS :
Charpente
Les portes extérieures
Les fenêtres,
Le revêtement de toiture
Le pare-air
Les divisions intérieures
La fondation (dalle de béton)
Le revêtement extérieur
La plomberie
L'électricité
La pose du gypse
Le tirage des joints
La peinture et le couvre sol
Inclus terrain #3 d'une valeur de 145 000$
Inclus 50 000$ pour cuisine et salle de bain
Le prix peut varier selon le choix des matériaux et le type de fondation choisie.
EXCLUSIONS :
Puits
Installations septique
Déboisement
Infrastructure
Connection au réseau électrique
*Notez que les prix peuvent être sujet à changement selon les caractéristiques spécifiques de votre projet, la fluctuation des matériaux et de la main d'oeuvre ou les ajustements de prix du contracteur.
Prévoyez un montant de 5000$ de livraison dans un rayon de 100 km de la région métropolitaine de Montréal.
Conséquemment, les aménagements intérieurs et extérieurs tels que, piscine, terrassement, pergola, auvents, stores extérieurs en bois structuraux, ameublement, foyer et accessoires décoratifs représentés dans ces images, ne sont pas inclus. Plan modifiable (frais en sus).
Idéal pour les amateurs de nature.
Appelez nous pour plus d'infos!
Particularités du bâtiment :
- Style: Maison détachée
- Proximité: Autoroute, Garderie/CPE, Golf, Parc, École primaire, Ski alpin, École secondaire, Ski de fond, Sentier de motoneige, Sentier de VTT
- Approvisionnement en eau: Aucun
- Système d'égouts: Aucun
Taxes:
- Taxes municipales: 0 $
- Taxe scolaire: 0 $
- Taxes annuelles totales: 0 $
Caractéristiques :
- Chambres : 3
- Dimensions du terrain : 3801.00 Mètres carrés
- Largeur du terrain en façade : 31.0 Mètre
- Profondeur du terrain : 133.5 Mètre
- Salle(s) de bains : 2
- Zonage: RESI
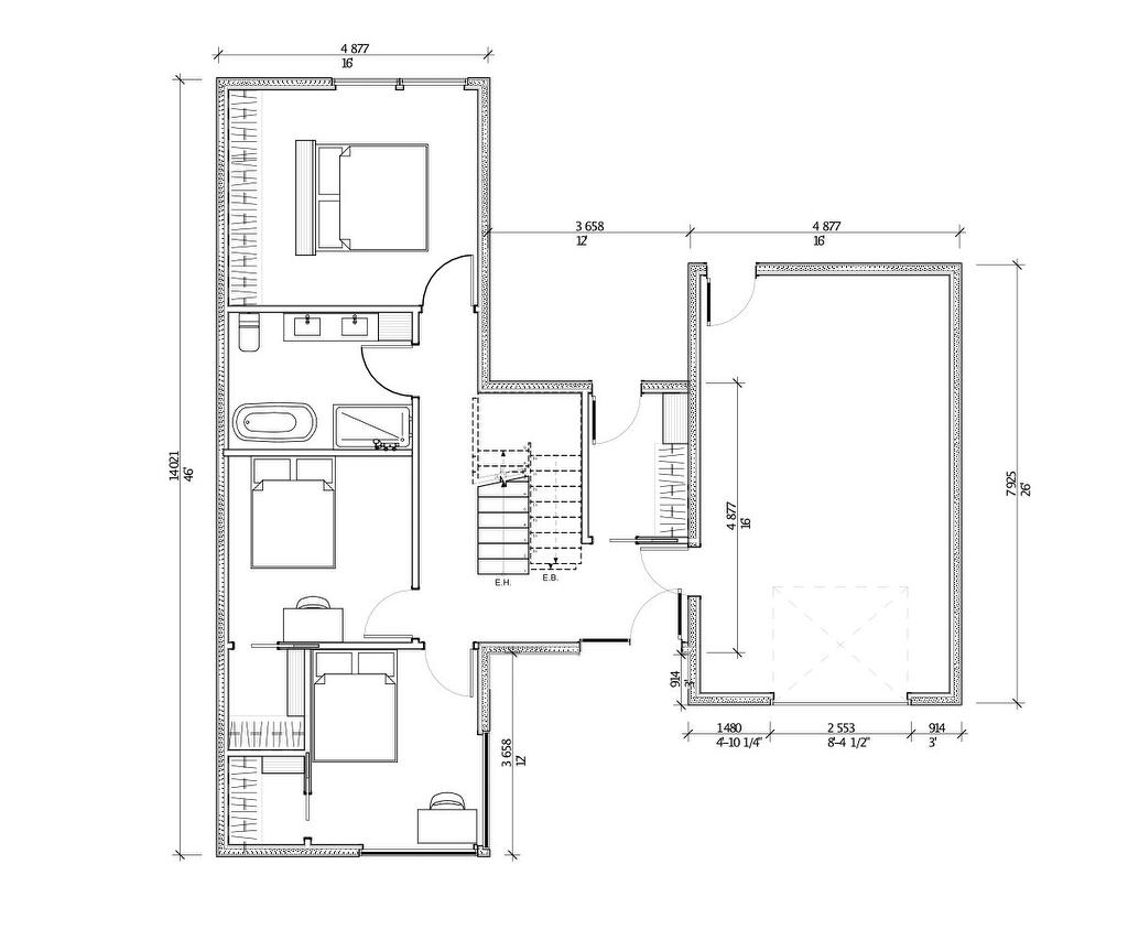
Détails des pièces :
- Hall d'entrée Rez-de-chaussée 2.74 m x 2.44 m 9 p x 8 p
- Cuisine Rez-de-chaussée 5.49 m x 2.74 m 18 p x 9 p
- Salon Rez-de-chaussée 6.10 m x 4.27 m 20 p x 14 p
- Salle à dîner Rez-de-chaussée 5.49 m x 3.05 m 18 p x 10 p
- Chambre Rez-de-chaussée 3.05 m x 3.05 m 10 p x 10 p
- Salle de bains Rez-de-chaussée 3.05 m x 1.83 m 10 p x 6 p
- Chambre principale 2e niveau 4.27 m x 3.20 m 14 p x 10.6 p
- Chambre 2e niveau 4.27 m x 3.20 m 14 p x 10.6 p
- Salle de bains 2e niveau 3.66 m x 1.83 m 12 p x 6 p
Convertir la mesure en :
Données fournies par : Centris - 600 Ch Du Golf, Ile -Des -Soeurs, Québec H3E 1A8
Nous croyons que tous les renseignements affichés sont exacts, mais nous ne le garantissons pas; les renseignements devraient être vérifiés de façon indépendante. Aucune garantie ou représentation de quelque nature que ce soit n’est offerte. Droits© 2021 Tous les droits sont réservés.
Tendances des prix du marché immobilier
Emplacement de Place Goyette, Sainte-Julienne, QC, J0K 2T0
Données démographiques de Place Goyette, Sainte-Julienne, QC, J0K 2T0
Étape de vie
Familles avec préadolescentsType d'emploi
Cols bleus/PrimaireRevenu moyen du ménage
89 082.93 $Nombre moyen d'enfants
1,80Population à domicile
Structure à domicile
Âge de la population
Éducation
Niveau d'éducation
No certificate/diploma/degree
27.82 %Diplôme d'études secondaires ou équivalent
22.61 %Certificat ou diplôme d'apprentissage ou d'une école de métiers
28.7 %Diplôme d'études collégiales ou d'études postsecondaires (non universitaires)
13.05 %Diplômes d'études universitaires
7.82 %Navetteur
Se rendre au travail
En auto
95.24 %En transport en commun
0.0 %À pied
0.0 %À bicyclette
0.0 %Par tout autre moyen
4.76 %Diversité Culturelle
Connaissance des langues officielles
Langue maternelle
Données Sur Le Bâtiment
Type de bâtiment
Appartements (faible hauteur et à étages multiples)
1.64 %Maisons
98.36 %



































