Moose Jaw Rm No. 161 SK, S0H 0N0
No. MLS® SK025881
Remarques :
(id:27)
Particularités du bâtiment :
- Style: Maison détachée
- Type de bâtiment: Unifamiliale
- Alimentation du foyer: Gaz
- Foyer: Oui
- Stationnement: Oui
- Surface utile: 2465 sqft
- Type d'architecture: 2 étages
- Type de foyer: Conventionnel
- Type de chauffage: Air pulsé
- Combustible de chauffage: Gaz naturel
Caractéristiques :
- Type de possession: Tenure franche
- Type de propriété: Unifamiliale
- Bâti en: 2001
- Bord de l'eau: Bord de l'eau
- Caractéristiques: Superficie en acres, Boisé, Terrain irrégulier, Terrain ondulé, Balcon
- Caractéristiques du paysagement: Pelouse
- Chambres : 4
- Dimensions du terrain : 2.62 Acres
- Irregular: Oui
- Largeur du terrain en façade : 387 Pieds
- Salle(s) de bains : 3
- Superficie habitable (approx): 2465 Pieds carrés
- Type de structure: Terrasse(s)
- Type de stationnement: VR, Places de stationnement
- Nbre d'espaces de stationnement: 6
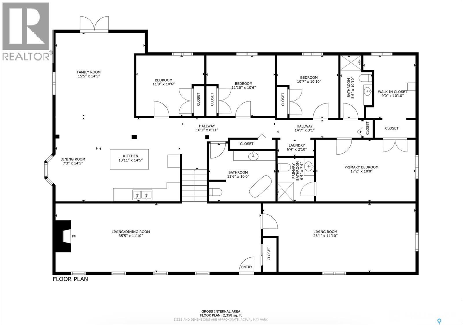
Détails des pièces :
- Cuisine 2e niveau 4.42 m x 3.45 m 14.50 p x 11.33 p
- Salle à dîner 2e niveau 4.42 m x 2.92 m 14.50 p x 9.58 p
- Salon 2e niveau 4.60 m x 3.51 m 15.08 p x 11.50 p
- Chambre 2e niveau 3.33 m x 3.51 m 10.92 p x 11.50 p
- Salle de bains 2e niveau 3.35 m x 2.57 m 11.00 p x 8.42 p
- Chambre 2e niveau 3.56 m x 3.33 m 11.67 p x 10.92 p
- Salle de lavage 2e niveau 1.91 m x 1.14 m 6.25 p x 3.75 p
- Chambre 2e niveau 3.51 m x 3.18 m 11.50 p x 10.42 p
- Salle de bains 2e niveau 3.51 m x 1.70 m 11.50 p x 5.58 p
- Chambre principale 2e niveau 6.02 m x 3.38 m 19.75 p x 11.08 p
- Salle de bains 2e niveau 2.18 m x 2.13 m 7.17 p x 7.00 p
- Salle à déjeuner 2e niveau 3.45 m x 2.46 m 11.33 p x 8.08 p
- Salle familiale Sous-sol 7.54 m x 7.14 m 24.75 p x 23.42 p
- Autre Sous-sol 4.78 m x 2.59 m 15.67 p x 8.50 p
- Salle familiale Niveau rez-de-chaussée 10.52 m x 3.51 m 34.50 p x 11.50 p
- Jeux Niveau rez-de-chaussée 8.05 m x 3.48 m 26.42 p x 11.42 p
Convertir la mesure en :
Tendances des prix du marché immobilier
Variations sur 1 an comparativement au même mois de l'année précédente. Trouvez un courtier dans ce secteur afin de recevoir plus d'informations.
Emplacement de River's Edge Acreage, Moose Jaw Rm No. 161, Saskatchewan, S0H 0N0
Données démographiques de River's Edge Acreage, Moose Jaw Rm No. 161, Saskatchewan, S0H 0N0
Étape de vie
Familles avec parents plus âgésType d'emploi
Industrie des services/Cols blancsRevenu moyen du ménage
124 000.00 $Nombre moyen d'enfants
2,10Population à domicile
Structure à domicile
Âge de la population
Éducation
Niveau d'éducation
No certificate/diploma/degree
15.94 %Diplôme d'études secondaires ou équivalent
30.44 %Certificat ou diplôme d'apprentissage ou d'une école de métiers
13.05 %Diplôme d'études collégiales ou d'études postsecondaires (non universitaires)
28.98 %Diplômes d'études universitaires
11.6 %Navetteur
Se rendre au travail
En auto
91.43 %En transport en commun
0.0 %À pied
5.71 %À bicyclette
0.0 %Par tout autre moyen
2.86 %Diversité Culturelle
Connaissance des langues officielles
Langue maternelle
Données Sur Le Bâtiment
Type de bâtiment
Appartements (faible hauteur et à étages multiples)
Maisons
100.0 %Achat ou location
Demandez l'ÉvaluationExpressMC pour cette propriété
Demander des infos sur cette inscription
Planifier une visite
















































